Riverview Construction Inc
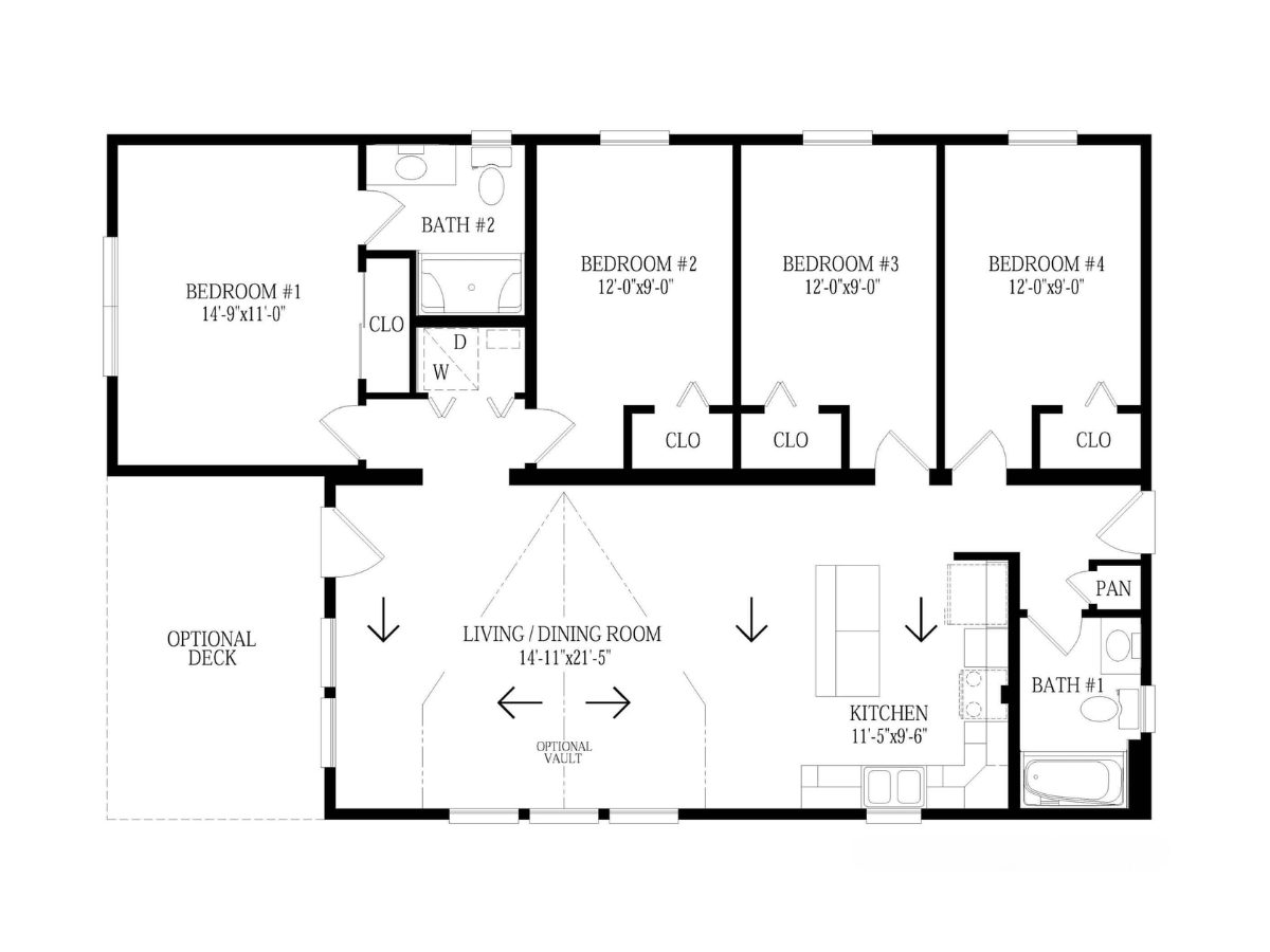
Floorplan: Ranch
Bedrooms: 4
Bathrooms: 2
Square Feet: 1355
Stevens, PA
About | Quote | FAQ | Blog | Service Area | Projects